Het Natuurhûs
Contactgegevens
📍 Adres: Koeweidendijk 27a, 7161 RJ Neede
🗺️ Google Maps
Kijk voor meer informatie en verhuurmogelijkheden op de website van het Natuurhûs:
🌐 www.natuurhus.nl

Het Natuurhûs ligt in een prachtige landelijke omgeving net buiten Neede. Het terrein betreft een omheind bosperceel van ongeveer 1 hectare groot, waarop de Finse blokhut staat. Achter het gebouw bevindt zich een ruime speelweide met daarachter het bos en een kampvuurkuil. In overleg mogen er op sommige delen van het gras tenten worden geplaatst.
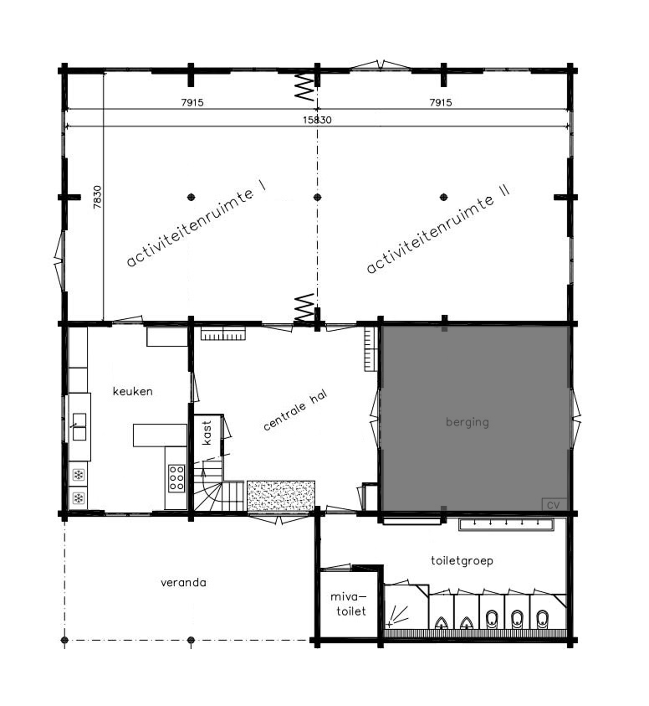
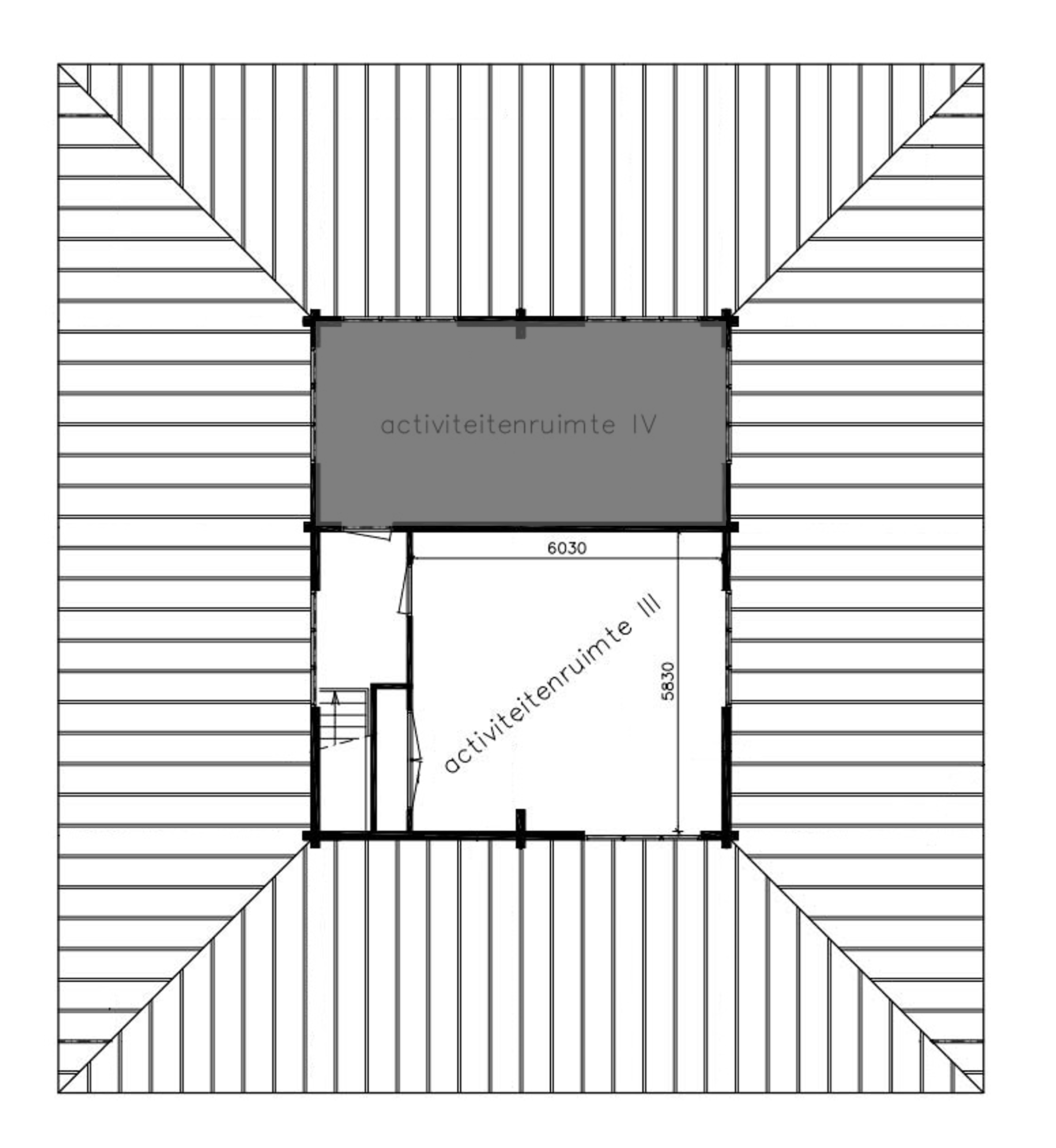
Het Natuurhûs heeft vier activiteitenruimten waarvan er drie worden verhuurd. Twee hiervan zijn op de begane grond. Aan elkaar is dit een royale ruimte van zo’n 15 bij 8 meter. Deze ruimte is door een gordijn op te splitsen in 2 aparte zalen van beide ongeveer 8 bij 8 meter. De ruimte op de eerste verdieping is zo’n 6 bij 6 meter groot. In de ruime hal is ook plek voor kleine activiteiten. Daarnaast kan onder de veranda lekker buiten worden gezeten, met uitzicht op het speelveld. Het gebouw is geschikt om te kunnen overnachten tot maximaal 60 personen.
De ruime keuken beschikt over een 6-pits gaskookplaat, grote koelkast, horecakoffiezetapparaat, waterkoker en kastruimte voor u als huurder. In de toiletgroep zijn toiletten, ook voor kinderen, en urinoirs. Tevens kunt u zich hier wassen en douchen. Er is een mindervalidentoilet met douche aanwezig.
Kijk voor meer informatie en verhuurmogelijkheden op de website van het Natuurhûs:
🌐 www.natuurhus.nl
Overzicht faciliteiten
Buiten
- Bos
- Speelweide (verlicht)
- Kampvuurkuil (verlicht, met stroompunt)
- Veranda met picknicktafels
- Parkeerplaats
- Fietsenstalling
- Plek voor tenten (in overleg)
Binnen
- Grote zaal met scheidingsgordijn op de begane grond
- Een (vergader)ruimte op de 1e verdieping
- Tafels en stoelen
- Ruime keuken incl. kookplaat (6-pits), koelkast, koffiezetapparaat en waterkoker
- Toiletgroep met toiletten, wasruimte en 2 douches
- Projectiescherm
- Wifi
Foto’s
Buiten






Binnen






Plattegronden
Begane grond

1e verdieping

Vind ons op: